Autocade file with floor plan of sanitary design of building
Description
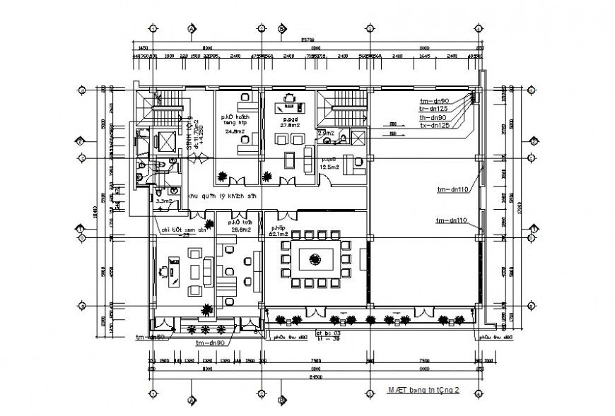
Autocade file with floor plan of sanitary design of building in floor plan with design and wall and wall support area with necessary dimensional and washing area with water control line and door and wall with washing area.
File Type:
DWG
File Size:
—
Category::
Dwg Cad Blocks
Sub Category::
Sanitary CAD Blocks And Model
type:
Gold

Uploaded by:
Eiz
Luna

